


Listing Courtesy of: CHARLESTON / Marshall Walker Real Estate
81 Rutledge Avenue Charleston, SC 29401
Active (208 Days)
$6,200,000 (USD)
Description
MLS #:
25014073
25014073
Lot Size
0.4 acres
0.4 acres
Type
Single-Family Home
Single-Family Home
Year Built
1826
1826
Style
Victorian
Victorian
County
Charleston County
Charleston County
Community
Harleston Village
Harleston Village
Listed By
Matthew Brockbank, Marshall Walker Real Estate
Source
CHARLESTON
Last checked Dec 15 2025 at 3:12 PM GMT+0000
CHARLESTON
Last checked Dec 15 2025 at 3:12 PM GMT+0000
Bathroom Details
- Full Bathrooms: 6
- Half Bathrooms: 2
Subdivision
- Harleston Village
Utility Information
- Sewer: Public Sewer
School Information
- Elementary School: Memminger
- Middle School: Courtenay
- High School: Burke
Garage
- Garage
Parking
- Covered Spaces :3
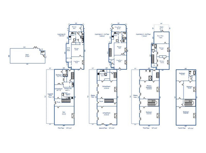
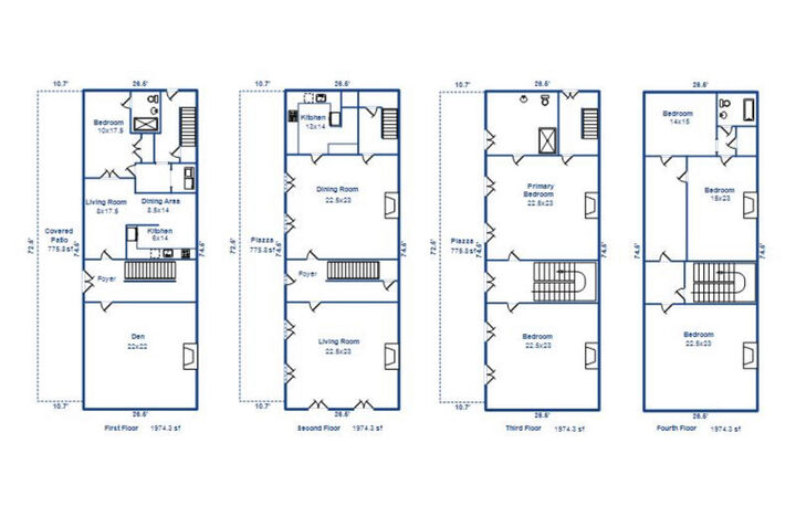
Stories
- 7
Location
Disclaimer: Copyright 2025 Charleston Trident MLS. All rights reserved. This information is deemed reliable, but not guaranteed. The information being provided is for consumers’ personal, non-commercial use and may not be used for any purpose other than to identify prospective properties consumers may be interested in purchasing. Data last updated 12/15/25 07:12
Carriage house (third building)
Originally housed carriages, a community room for servants, and seven small bedrooms
Middle house (original house)
Built before 1775, constructed using wooden pegs
Now divided into rental units
Main house
Built in 1826 by Dr. J. Glover with 18-36 inch thick brick walls
Formerly served as the Italian consulate
Original painted ceilings deteriorated, but gold leaf cornices in the living and dining rooms remain
Cornices were custom-made in France to fit windows, mirrors, and French doors
Historical Significance
First recorded sale in 1775 - included the building now used as rental property
1826 - Mansion built by Dr. Joseph Glover (1740-1840), a respected physician and advocate for urban greenery
Later ownership
Arthur Gordon Rose (1794-1880) - President of the Bank of Charleston
Early 1900s - Used as a school for girls, later purchased by the Benjamin Moise family
1906 - Bought by Giovanni Sottile, Italian Consul, who added Italianate details
Hosted King Victor Emanuel of Italy
1991 - Passed to Carmelina Sottile Thompson
1999 - Purchased by the current owners
Architectural & Preservation Details
Mid-19th & early 20th century - Italianate embellishments and ironwork added
Front doors feature ornate grille work, similar to those at 1 Broad Street (possibly linked to banker Arthur G. Rose)
Hand-carved vestibule door with fruit relief, made in England
Kitchen renovated in 2023 - New cabinets and appliances
Original floor plan remains intact - Owners prioritize historic integrity
Structural enhancements
Air conditioners added to rooms without them
Sump pump system installed to prevent flooding
Survived earthquakes, hurricanes, floods, and war
Gardens & Atmosphere
Ideal for entertaining - Hosted numerous parties, charity events, and musical gatherings
Lush gardens with over 80-year-old sago palms
Other plantings include loquats, pomegranates, camellias, hydrangeas, and azaleas, cared for by the current owner
This historic Charleston estate offers a blend of grandeur, history, and tranquility, preserving its architectural and cultural heritage.